December 23, 2025

From the ReImagine Appalachia team
2025 was a tough year for the region. After a few good years of Coal Country being prioritized for federal climate infrastructure funds, clean energy tax credits were dismantled, carefully planned job-promoting development projects were scrapped, and progress to keep communities safe from increasingly relentless natural disasters was undermined. However, the collective action we take in times like this says the most about who we are, and this year, together, we continued to carry our collective vision for a bright future forward while caring for our neighbors and adapting to new hurdles on the move.
So, when we look back on 2025, we’ll know we were shaken but not complacent. Together, we made the notion of a sustainable manufacturing economy more tangible, more substantial, and much harder to dismiss. We also promoted disaster resiliency, defended the federal climate infrastructure funding, spread our story of hope, increased the region’s advocacy capacity, spoke with a more unified voice and, ultimately, continued to build our collective leverage.
Here’s how:
We mapped out the resources we could leverage
We produced a manufacturing webinar series that cataloged the region’s resources. These include existing manufacturing strengths, abandoned industrial infrastructure for redevelopment, abundant land for growing biomaterials for manufacturing alternatives to single-use plastic and green building materials, navigable waterways that could sustain massive supply chain operations, and a highly skilled workforce. We also hosted seven disaster resilience events that showed how, through nature-based hazard mitigation, we could better protect our communities by strategically planting greenery that grows naturally within the region.
We connected the dots
We released an interactive manufacturing research tool that shows how clean economic sectors could leverage the region’s abundant resources to become more competitive. It shows how industries can co-develop to use resources more efficiently, reduce waste, and barriers to scaling. We produced five reports that explored sustainable industries in depth, detailing where their opportunities lie both for funding and for commercial growth. We also quantified how economic revitalization could curb natural disasters, not just by stabilizing communities but also by restoring flood absorbent forests to promote eco-tourism. We also co-released two economic reports with the Keystone Research Center that showed how Appalachia flourished after the influx of sustainability-centered federal investment starting in 2022, and how it struggled after funds were clawed back in 2025.
We made a plan
How can we make an effective plan to help the region grow into a new energy economy hub? By leaving nothing out. This year, we worked with hundreds of partners across the region to develop the Appalachian Manufacturing Action Plan (AMAP). It consolidates all our research into one master document, which we created with extensive expert input and diverse stakeholder feedback. This plan does not overlook the region’s obstacles to economic growth. It is realistic about the land access issues, barriers to accessing procurement markets, and rapid deindustrialization that have left businesses and communities stranded. What the plan does do is link those issues to proven or promising solutions, from the policy side, business development & investment side, and the responsible development side. Now in draft form, we will finalize the plan at Appalachia Matters, our Sixth Annual Virtual Strategy Summit on January 13-14, 2026.
No one understands the region’s needs or capabilities better than its people, and the work we completed together this year projected those needs and capabilities with a more unified voice. So, let’s look at our specific accomplishments in 2025.

We launched the manufacturing story map tool
We kicked off our Summer 2025 Manufacturing Series by unveiling North Central Appalachia: Built for the Clean Economy, an interactive story map that visualizes quantitative research on manufacturing strengths within the region. It charts Appalachia’s competitive performance in manufacturing, in which it outpaces the nation in 14 of the 21 manufacturing sectors analyzed. The tool also connects the dots on where the region’s specialized workforce could meet the supply chain needs of growing clean economic sectors.
The tool also maps the region’s industrial infrastructure resources. This includes the mills, furnaces, and unused or underutilized assets like abandoned coal plants, abandoned brownfields and industrial sites, as well as navigable waterways that could be mobilized to reactivate deindustrialized communities and supply the manufacturing needs of the new energy economy.
We rolled out the Summer 2025 Manufacturing Series
Comprising six events and culminating in the Summit for Appalachian Manufacturing Strategy, the Summer 2025 Manufacturing Series allowed us to examine clean economic sectors one at a time. We looked at how to form green building supply chains, how to leverage the region’s plastics manufacturing strengths to produce biodegradable polymers, and how to explore using our navigable waterways as delivery routes for wind turbine parts manufactured within the region. We also explored how different sustainable industries could be co-located on redeveloped shuttered coal plant sites to take advantage of the existing grid connection and infrastructure. By doing this, we could also maximize energy efficiency through heat recycling configurations.
We facilitated technical assistance with the PA Rising Series
Both at virtual and in-person events, ReImagine Appalachia, along with our partners, facilitated a series of technical assistance workshops for the RISE PA industrial decarbonization grant program. We helped hundreds of projects across the state of Pennsylvania refine their applications to improve their chances of locking down funding.
We also produced an event that explored how the RISE PA framework could be turned into a replicable model that other states could adapt to their decarbonization efforts.
We rolled out a Re-Use Design Jam Series
Alongside our partners, ReImagine hosted a series of events designed to innovate markets and distribution systems for discarded materials. Reimagining the potential of waste streams and designing new systems to input these streams as feedstocks to create new items and materials will lead to new industries, more jobs, costs cut and reduction of landfill buildup and dependency on raw materials. Many communities across rural and even urban areas of Appalachia lack equitable access to sustainable waste management and reuse systems because of various challenges including lack of infrastructure, investment, and geographic distance. This reality makes waste collection, and by extension, recycling and distribution challenging but also fertile ground for opportunity and development. Appalachians are renowned for their resourcefulness and ingenuity and showcase examples of circular economy innovation across the region.




In-person design jam, in Huntington, West Virginia.
The Re-Use Design Jam Series was designed to convene stakeholders that are interested or engaging in the circular economy to address challenges and propose solutions as a group, to the many facets of the growing economy in Appalachia. This three-part interactive series (the last event taking place in person in Huntington, West Virginia) inspired attendees to envison an Appalachia where circular economy and sustainable manufacturing thrive. Participants were assigned to facilitated breakout groups where they were encouraged to read through scenarios and collaborate to brainstorm solutions for collecting, sorting, repairing, redistributing, and fomenting circular systems for waste materials. The Jams resulted in many connections made, solutions proposed, and pilot projects and programs ideated.
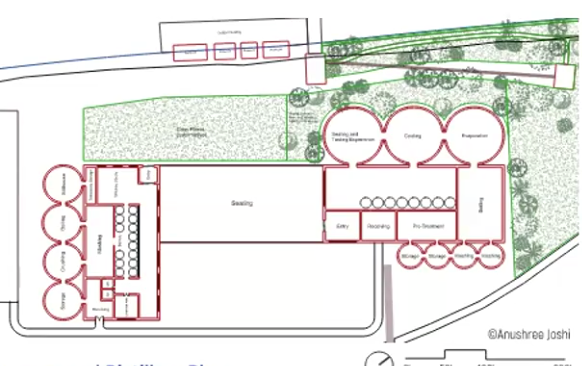
Collaboratively released visual designs for economic development projects redeveloped from shuttered coal plants
We released the Shuttered Coal Plant Handbook in 2024 to offer redevelopment strategies for communities with abandoned coal plant infrastructure. But we lacked visuals to accompany the vision. So this year, we partnered with the Pennsylvania State University’s Hamer Center for Community Design for a three-month class project, in which undergraduate architecture students created visual concepts for redeveloped shuttered coal plant sites.
Student shuttered coal plant redevelopment projects.
Students spent months gathering stakeholder & expert feedback, surveying shuttered coal plant sites, and iterating redevelopment proposals to address community needs and best leverage on-site assets of actual sites. They tracked the population densities, trade skills, and poverty levels in communities near to their sites. They also investigated layouts and inner workings of their chosen sites to determine how to most efficiently make use of the space. Students presented their final concepts to our coalition on December 11.
They designed eco-industrial parks, research centers, breweries, and agricultural hubs. Each of their projects hosted a multiplicity of benefits. For example, one project established a brewery and community recreation complex that would magnetize tourist dollars, while providing education and family assistance to locals in the form of a library and childcare center. The brewery itself would create manufacturing jobs, and its byproducts would be used as fertilizer for landfill remediation projects.
Students got a valuable learning opportunity from this collaboration as did our coalition, and we will use their detailed designs to drive momentum for shuttered coal plant redevelopment.
We launched The Appalachian Disaster Resilience Series
This year, ReImagine teamed up with the Central Appalachian Network to give communities a wide assortment of tools for preparing for, responding to, and recovering from natural disasters. Over the course of six events, we shared mini-grants, explored setting up community resilience hubs, considered how to navigate the Federal Emergency Management Agency (FEMA), and convened regional artists and storytellers to discuss how creative projects can help disaster-impacted communities heal and raise awareness.
We capped off the year’s disaster resilience webinars with the launch event for the Appalachian Flood Policy Coalition. Here we celebrated the coalition’s launch, did a final round of disaster resilience updates, and discussed what’s on the horizon for 2026.
We united with regional leaders to form the Appalachian Flood Policy Coalition
ReImagine, alongside more than a dozen organizations has launched the Appalachian Flood Resilience Coalition (AFRC). The coalition works to drive regional collaboration and advocacy in support of policy change and investment needed to create a resilient Appalachia. It promotes the federal policy goals included in the widely endorsed Flood Resilience in Appalachia policy platform, released in May 2024.
The AFRC’s new website will serve as a hub for resources, news, and events to bolster effective response and mitigation to natural disasters.
We rolled out a series of comms and coalition-building trainings
ReImagine Appalachia worked to create a few ongoing series focused on building capacity for our partners. The first being our standing coalition update meetings, a bi-weekly call with an average of 50 attendees a session. We spend time on the coalition update calls updating our partners on important federal updates, highlighting resources and upcoming events, as well as highlighting the work of our incredible coalition partners – the coalition update list is currently at 793 registrants! We also launched our ‘Capacity & Coffee Series’ as part of our Community Conversations Working Group. This series included trainings on topics such as ‘Coalition Building in the Virtual Space’, ‘Sign-On-Letter 101’, ‘Analytics Training’, and many more. We have 386 total registrants for this series. Finally, we had a few communications-focused trainings.
Late July through mid-August, we hosted two workshops on how Appalachian organizations and advocates can leverage short-form video to tell compelling regional stories, highlight community voices, and advance policy goals.
Our expert presenters will share practical examples from their work, demonstrate accessible techniques for creating impactful videos, and how to distribute those videos to get maximal viewership and engagement.
We expanded our Arts & Culture Initiative
Continuing our work that began in early 2024 with our Appalachian Arts & Culture Landscape Analysis, we’ve expanded our network and vision even further. We continue to serve over 130 artists and organizations across the region through networking, sharing resources, and holding space at our monthly Arts & Culture convening. Additionally, we have provided a platform for over 40 artists and practitioners on social media through our ongoing Appalachian Artist Highlight series. A host of blogs on topics ranging from disaster resilience through art to indigenous advocacy in the region round out our work and aid in preparing us for our next arts & culture research project that will dive deep into creative placemaking, public art, and community development.
We released 5 sustainable development reports that were informed by stakeholders across the region
This year, we released five white papers from our Make it in Appalachia series. They define the industry strengths, outline market demand the region is well positioned to meet, and chart viable paths to integrating emerging clean technologies and biomaterials into supply chains to do so.
We released two economic reports on the very real impacts to Coal Country from federal funding freezes, project cancellations, and gutting of community benefit plans
ReImagine Appalachia and the Keystone Research Center collaboratively released two reports this year that cut a sharp contrast between the region’s economic health amid the influx of federal investment from the Inflation Reduction Act and the Bipartisan Infrastructure Law, vs when that funding was stifled by senseless cuts and claw backs. The first report “If You Fund It, They Will Come”, was released in April and showed that the region not only welcomed the historic economic stimulus from 2021 to 2024, but also quickly went to work on development projects that both played to the region’s manufacturing strengths and supported the rapid recovery of many struggling communities.
The second, “Tracking the Appalachian Impacts: What’s on the Line as Federal Funding Flatlines” also known as the Flatline Report was released in December. It shows that regional interest in clean energy and manufacturing has persisted despite overt government hostility. In the years 2022 through 2024, federal investment dramatically sparked private investment. This force expanded factories, strengthened supply chains, and kickstarted rapid jobs growth. The Trump administration’s reversal of funding policy left communities that were ready to go on development projects stranded, and as a result, the region’s investment outlook has basically flatlined in the third quarter of 2025.
These two reports, highlight the concrete data on why federal investment not only revitalizes Appalachian communities, but it also pays off by spurring rapid economic growth.
Now that we’ve covered our activities this year, let’s look at our accomplishments from a numbers standpoint.

2025 in pictures:


New York Climate Week
Special projects director, Natalia Rudiak, participates in day 2 of a climate & sustainability workshop on how innovation, inclusivity, and policy reforms can drive a just energy transition.

ICCR Conference at UT Knoxville, TN
Dana Kuhnline, special projects director, and Bikash Gupta, sustainable manufacturing analyst attend the ICCR conference in Knoxville.

Regional Convening hosted by Heinz June 2024
This year, ReImagine’s co-director Amanda Woodrum, stopped into Pittsburgh to visit a unionized glass manufacturing studio.

Appalachian Regional Commission Annual Conference
ReImagine Appalachia’s director of operations, Molly Updegrove went to Frostburg, MD, for the ARC’s conference on growing local economies!

ReImagine Appalachia Annual Retreat
Our coalition gathered in Wheeling, West Virginia, March 13-14, to hammer out our work plan priorities, have fun, and get to know one another.

Lee Geisse is Retiring
The bestest climate labor advocate ever is retiring. We will miss Lee GEISSE but hope she’s on a beach somewhere sipping margaritas.

PSU Students Redesign Shuttered Coal Plants
After months of hard work and expert and community feedback, PSU students will showcase concepts for development projects that leverage shuttered coal plant infrastructure, bolster modern economic initiatives, and uplift communities!

Southern West Virginia Documentary Series
In the summer of 2025, ReImagine Appalachia’s Special Projects Director, Natalia Rudiak, went to McDowell County to investigate Southern West Virginia’s Water Crisis. She recorded what would become an informative documentary series.

A New Vision for Shuttered Coal Plants
A New vision for shuttered coal plants the Sherco Solar Project could be a model for Appalachia! The Reimagine Appalachia team toured the repurposed Sherburne County Coal plant, which has now been redeveloped into a solar field! Helping the environment and lowering energy bills!

2025 by the Numbers:
Year-end social media follower count

Events & Meetings

We covered a lot of ground with our 2025 events. This includes:
6 Summer Manufacturing Events
7 Disaster Resilience Webinars
2 Summits
3 Technical Assistance Webinars
3 Manufacturing Design Jams
2 Economic Report Overviews
2 Communications Workshops
6 Advocacy & Coalition Update Trainings
3 Legislator Engagement Trainings
And more!

For ReImagine Appalachia’s Fifth Annual Virtual Strategy Summit, we convened some of the biggest home-grown talents in the manufacturing, investment, and policy to guide us through a new political reality, and it’s led to the creation of our Appalachian Manufacturing Action Plan.
The Appalachian Manufacturing Action Plan Summit explored the opportunities for building on the region’s existing strengths to transform the Appalachia into a hub for the new energy economy.

ReImagine hosts bi-weekly calls (Tuesdays at noon EST) to share policy updates and resources with our coalition members. Some presentation highlights from 2025 included an overview of how the region can leverage opportunity zones to draw investment into coal communities, and regular policy and finding updates during the October government shutdown.

Always excited to make new connections as well as to engage with our coalition, ReImagine team members engaged in 8 in-person events across the US this year.

Presentation stops included New York Climate Week and Columbia University’s School of International Public Affairs!
Reports & Tools:

Our new story map too, North Central Appalachia: Built for the Clean Economy, It visualizes key industrial data. For example, our analysis reveals that today, the share of manufacturing employment in the Appalachian counties of the region remains higher than typical for the nation, with strengths in sectors that will play an important role in growing the new economy.

Together with the Keystone Research Center, ReImagine Appalachia produced two economic reports this year…
REPORT 2: Tracking the Appalachian Impacts: What’s on the Line as Federal Funding Flatlines

These five reports explored the most promising solutions that could help build out sustainable industries within the region. The research we gathered over the course of the year from these white papers helped us develop our Appalachian Manufacturing Action Plan (AMAP).
See our Summer 2025 Make It In Appalachia white papers here!
| The Region can be a Hub for Low-Carbon Building Materials Standards to lower the carbon emissions from construction operations are expanding to assess the carbon footprint of building materials. This has spiked demand for both low-carbon and locally produced materials. This report shows how Appalachia could stand to benefit from manufacturing these goods within the region. Read here. |
| Transforming Shuttered Coal Plants into Eco-Industrial Parks This report examines how Appalachia’s 217 shuttered coal plant sites can be redeveloped into modernized manufacturing hubs. It also explores how to do this in a way that creates jobs in coal plant communities in numbers equivalent to pre-coal-industry-decline levels. Read here. |
| Industrial Hemp Production & Manufacturing The increasing cultivation of biomaterials like hemp for manufactured products can help diversify the crop base of farmers in times of market and weather instability. Industrial hemp, as a resource, cannot be depleted, making it an ideal material to strengthen Appalachia’s economy by supplying feedstock for new and growing markets. Read here. |
| From Plastics to Bioplastics Appalachia’s plastics industry is well established and bolstered by a skilled workforce numbering in the thousands. Regional companies supply plastics to medical, agricultural, automotive, textile, and other sectors. But these sectors are increasingly incorporating bioplastics. With the region’s existing strength in this area, not only can it adapt to meet bioplastics demand but it can also become a leader in the industry as well. Read here. |
| The Supply Chain for Wind Turbines Will Create Jobs in Coal Country New wind infrastructure could create significant manufacturing jobs in Appalachian counties in Kentucky, Ohio, Pennsylvania and West Virginia. This report finds that investment in wind infrastructure could produce over 70,000 manufacturing jobs in these four states by 2045, with nearly a third—some 22,000— in the 193 counties within the jurisdiction of the Appalachian Regional Commission (Figure 1). The concentration of jobs would be in the historically strong manufacturing sectors of the region: plastics, rubber and fabricated metal. Read here. |
Communications:

We put the word out about important legislative actions, shared sign-on letters, and used our collective platform to demand that Congress not turn a blind eye to Appalachian communities while enriching large corporations. See below, our complete list of statements, advisories, and releases in 2025.
Click here to read our press statements
- New Report Reveals 67% of Appalachia’s Projected Clean Energy Jobs at Risk as Federal and Private Investments Flatline — Published 2025/12/19
- ReImagine Appalachia to Release Report on Federal Clean Energy Investment Decline in Press Call — Published 2025/12/18
- Appalachian Flood Resilience Coalition to Host Public Webinar on Regional Flood Policy and Solutions — Published 2025/12/02
- A Dozen Organizations Launch Appalachian Flood Resilience Coalition to Protect Appalachians from Devastating Floods — Published 2025/11/13
- Newsletter Feature – Regional Roundtables — Published 2025/10/28
- REIMAGINE APPALACHIA MANUFACTURING STRATEGY SUMMIT CHARTS PATH FORWARD FOR REGIONAL MANUFACTURING HUB — Published 2025/10/17
- ReImagine Appalachia to Host Manufacturing Action Plan Summit: Virtual event will outline vision for sustainable manufacturing hub in Appalachia — Published 2025/10/13
- ReImagine Appalachia’s Statement on Cancelled DOE Projects — Published 2025/10/09
- ReImagine Appalachia Statement Regarding the Federal Government Shutdown — Published 2025/10/03
- Reflecting and Rebuilding, One Year After Helene — Published 2025/09/23
- Amid Drumbeat of Disasters in Region, Local Leaders Across Appalachia Push for Strong FEMA Act — Published 2025/09/03
- House subcommittee to vote on cuts to mine safety tonight — Published 2025/09/03
- Solar For All Grant Cancellations — Published 2025/08/07
- REIMAGINE APPALACHIA RESPONDS TO TRUMP ADMINISTRATION DECISION TO REVOKE EPA’S ENDANGERMENT FINDING — Published 2025/07/30
- WEBINAR: Nature-Based Approaches to Reduce Flood Risk in Appalachia — Published 2025/07/16
- Funding must continue for Appalachian Regional Commission, urge government leaders and community groups — Published 2025/07/08
- ReImagine Appalachia Statement on Senate Passage of Reconciliation Bill — Published 2025/07/01
- New Report: Thousands of Jobs and Billions in Economic Growth at Risk in Appalachian States if Inflation Reduction Act Programs Are Cut — Published 2025/06/27
- ReImagine Appalachia Hosts Webinar on C-PACE Financing for Clean Energy Projects — Published 2025/06/27
- ReImagine Appalachia to Release New Research on Green Building Opportunities in the Ohio River Valley — Published 2025/06/24
- ReImagine Appalachia to Host Virtual Event Unveiling New Story Map of Region’s Manufacturing Assets — Published 2025/05/06
- Amid Chaos Caused by Funding Cuts, Layoffs, and Policy Rollbacks, Appalachian Leaders Release Appropriations Priorities for Congress — Published 2025/05/01
- If You Fund It, They Will Come: How Federal Clean Energy and Manufacturing Funds Spurred Private Spending, Doubling Appalachia’s Climate Infrastructure Investment in Coal Country — Published 2025/04/09
- MEDIA ADVISORY: Experts to Explore Appalachia’s Potential as Major Wind Turbine Manufacturing Hub — Published 2025/03/26
- Real-World Impacts of Trump Spending Freeze Hitting Appalachia Amid Disastrous Storms — Published 2025/02/20
- PRESS ADVISORY: ReImagine Appalachia Hosts Crucial Discussion on McDowell County Water Crisis — Published 2025/02/07
- ReImagine Appalachia Responds To Executive Orders — Published 2025/01/28

Our Media Hits more than doubled over the previous year’s. We can proudly state that this year our clean economy research reached tens of thousands of readers across the country.
ReImagine was part of the conversation in Washington Post, The Architects Newspaper, The Columbus Dispatch and more!
See our full list of media hits here!

The ReImagine Blog has grown into a go-to resource for people seeking to learn about emerging clean industry trends, policy updates, and arts & culture studies on the region.
Thousands of readers visit our blog every week. Many are Appalachians seeking resources & information and many are outsiders seeking to learn more about the region. Check it out here.

Now at 6,000 Subscribers, We added almost 1,000 new subscribers to our email lists in 2025. This has dramatically increased our capacity to reach people with crucial funding opportunities, community educational resources, toolkits, and guides.
Stay informed with our newsletter here!

Our Stories of Hope video series shows that when you invest in Appalachian people they get right to work revitalizing their communities and supporting the economies of their states. This year, we produced 11 orginial videos showcasing inspiring entrepreneurial and humanitarian initiatives from across the region! Watch here.

Our coalition is an ecosystem. Our various work plan priorities interact and mutually benefit each other in interesting ways. We engage with manufacturers, policy buffs, spokespeople of the arts, labor groups, and other parties to amplify our advocacy for the region’s most pressing issues.
Networks we support:
- Ad Hoc
- CBA
- Community conversations
- Federal Policy Team
- Manufacturing Team
- AML Labor Group
- Arts and Culture
- ReImagine Your Community
- Flooding Network
- Shuttered Coal Plant Working Group
Despite the challenges, it’s been a year marked by progress, and we’re ready to roll up our sleeves and continue our work in the next!
If you would like to continue to support our work, you can make a donation here. Any amount helps!





